Скачать каталог
+7 (910) 101 02 70
Режим работы 9:00 - 21:00
Заказать звонок

Потсдам

Двухэтажный дом из кирпича в стиле хай-тек. Плоская кровля, идеальная геометрия, минималистичные и современные решения. Коттедж с бассейном, террасой, пространством для работы и отдыха.

Общая площадь

329 м²

Этажей

2

Спален

5

Санузлов

3

Стоимость строительства уточняйте у менеджера

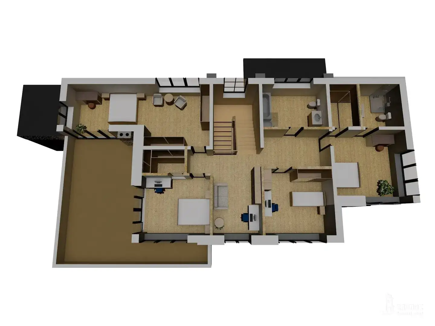
Планировка

  • Этаж 1
  • Этаж 2

Дополнительные опции

Окна
Окна
Двери
Двери
Погонаж
Погонаж
Лестницы
Лестницы

Похожие дома