Скачать каталог
+7 (910) 101 02 70
Режим работы 9:00 - 21:00
Заказать звонок

Бавария-3

Дом из кирпича со скандинавскими нотками. Два жилых этажа с удобной планировкой: гостевая спальня, кухня, гостиная, подсобные помещения на первом этаже, спальни на втором. Дом дополнен балконом по периметру здания, террасой и навесом для автомобиля.

Общая площадь

376.8 м²

Этажей

2

Спален

4

Санузлов

3

Стоимость строительства уточняйте у менеджера

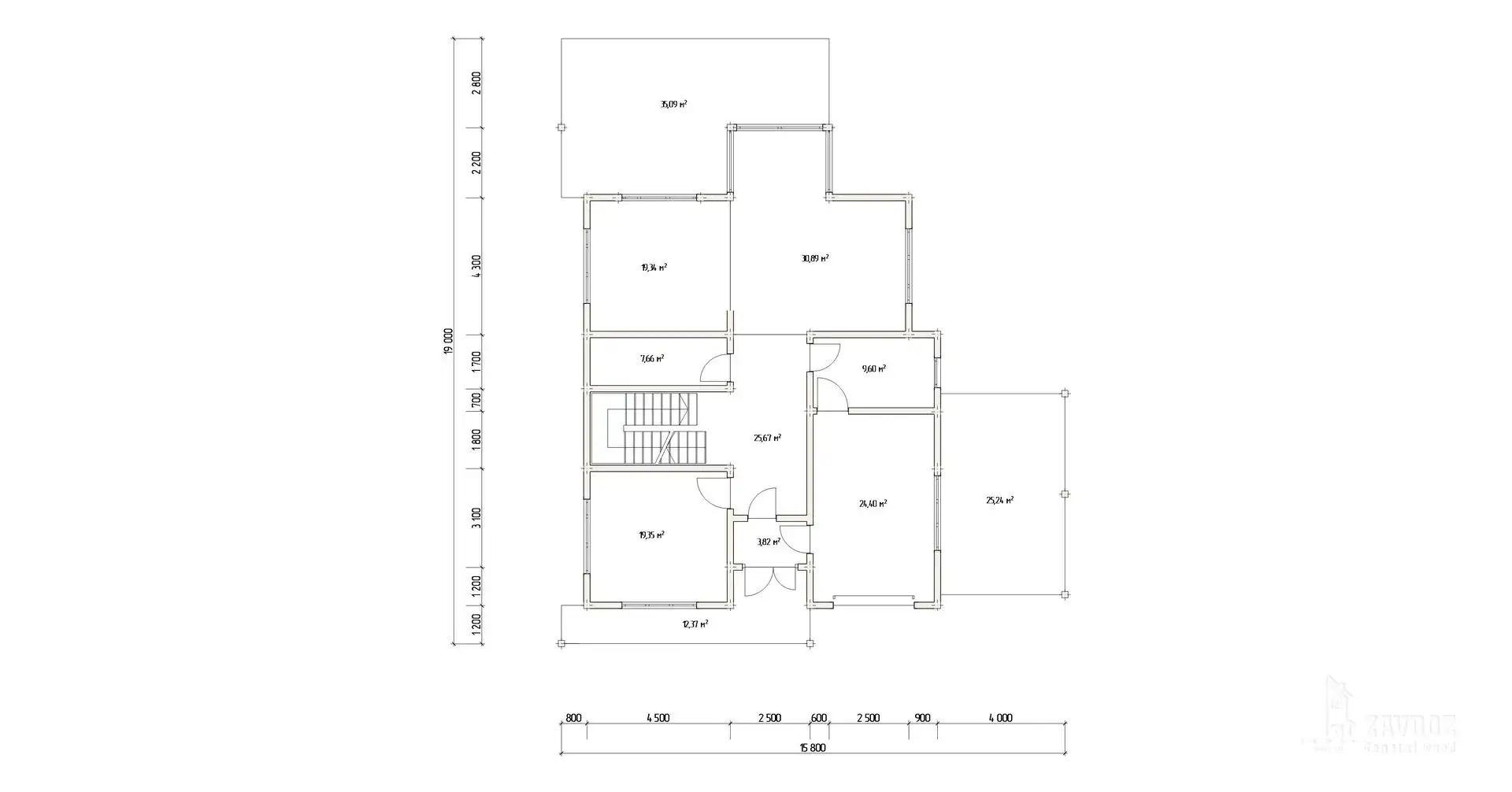
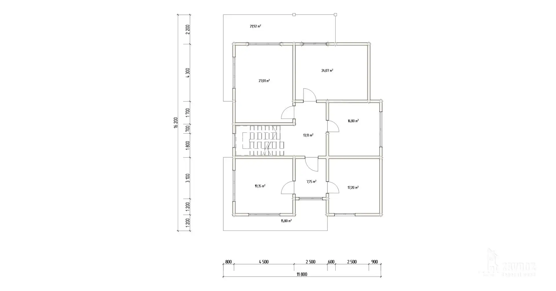
Планировка

  • Этаж 1
  • Этаж 2

Дополнительные опции

Окна
Окна
Двери
Двери
Погонаж
Погонаж
Лестницы
Лестницы

Похожие дома