Скачать каталог
+7 (910) 101 02 70
Режим работы 9:00 - 21:00
Заказать звонок

Грайн-3

Дом из кирпича с двумя жилыми этажами и террасой. На первом — просторная кухня гостиная, где можно разместиться всей семьей, кабинет, подсобные помещения, на втором — 4 спальни и 2 отдельных санузла.

Общая площадь

323 м²

Этажей

2

Спален

4

Санузлов

3

Стоимость строительства уточняйте у менеджера

Планировка

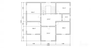
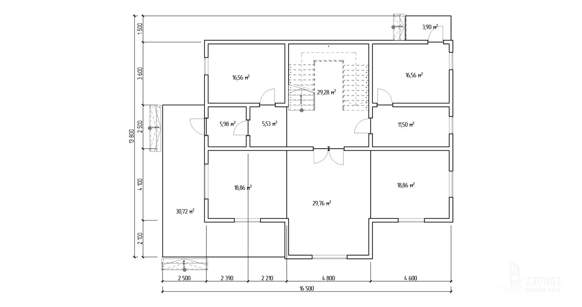
  • Этаж 1
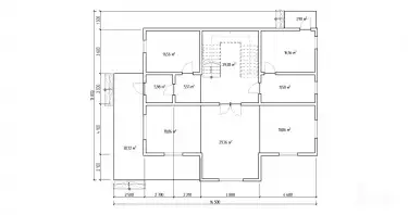
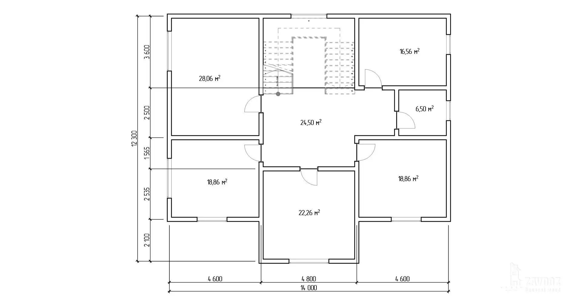
  • Этаж 2

Описание проекта


Дополнительные опции

Окна
Окна
Двери
Двери
Погонаж
Погонаж
Лестницы
Лестницы

Похожие дома