Скачать каталог
+7 (910) 101 02 70
Режим работы 9:00 - 21:00
Заказать звонок

Орхус-3

Дом из кирпича с двумя этажами, балконом и навесом для машины. Просторный первый этаж с гостевой спальней и кухней-гостиной, на втором этаже 2 отдельные спальни и детская с выходом на балкон.

Общая площадь

156.3 м²

Этажей

2

Спален

4

Санузлов

2

Стоимость строительства уточняйте у менеджера

Планировка

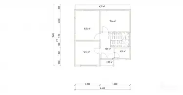
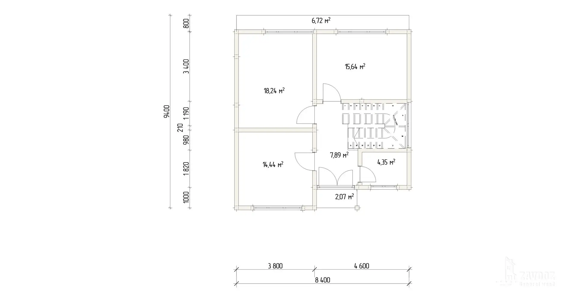
  • Этаж 1
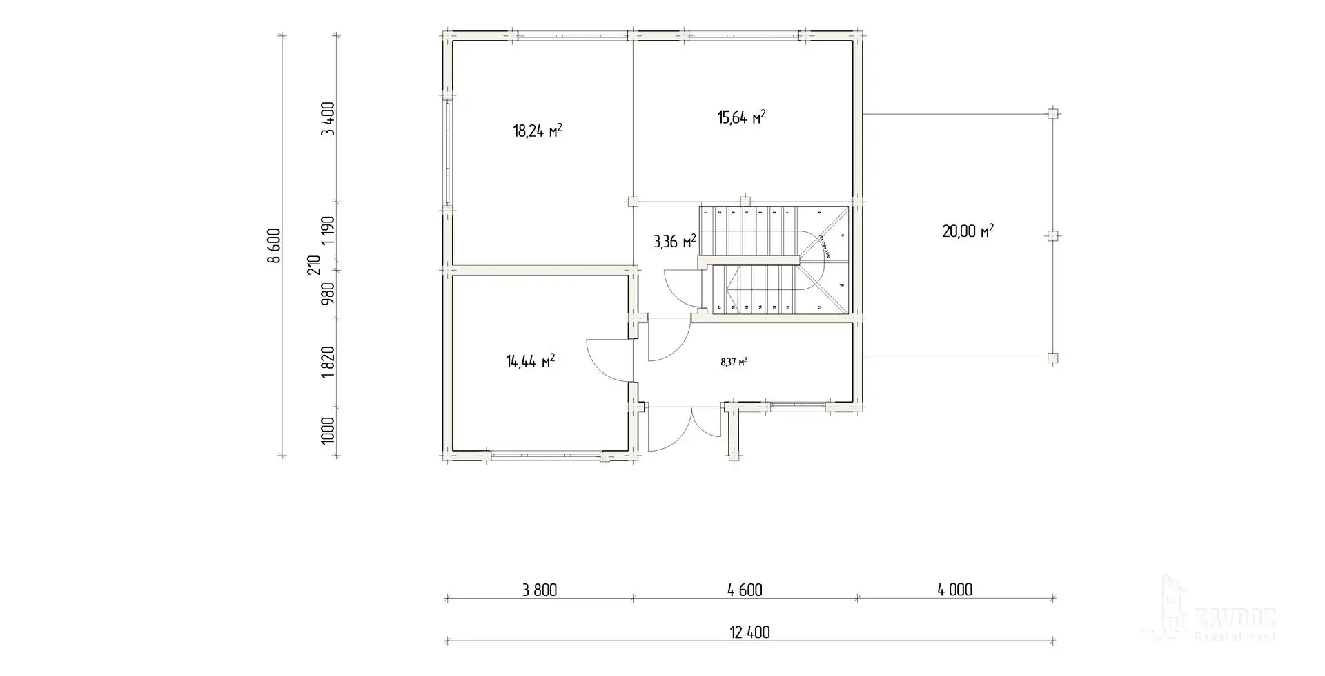
  • Этаж 2

Описание проекта


Дополнительные опции

Окна
Окна
Двери
Двери
Погонаж
Погонаж
Лестницы
Лестницы

Похожие дома