Скачать каталог
+7 (910) 101 02 70
Режим работы 9:00 - 21:00
Заказать звонок

Бриссаго

Двухэтажный фахверк с 3 комнатами и вторым светом

Общая площадь

158 м²

Этажей

2

Спален

3

Санузлов

1

Цена за домокомплект
от 1 975 000 руб.
Стоимость строительства уточняйте у менеджера

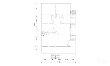
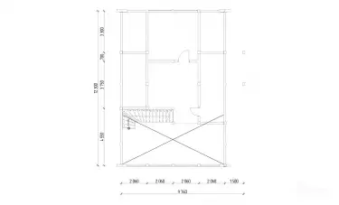
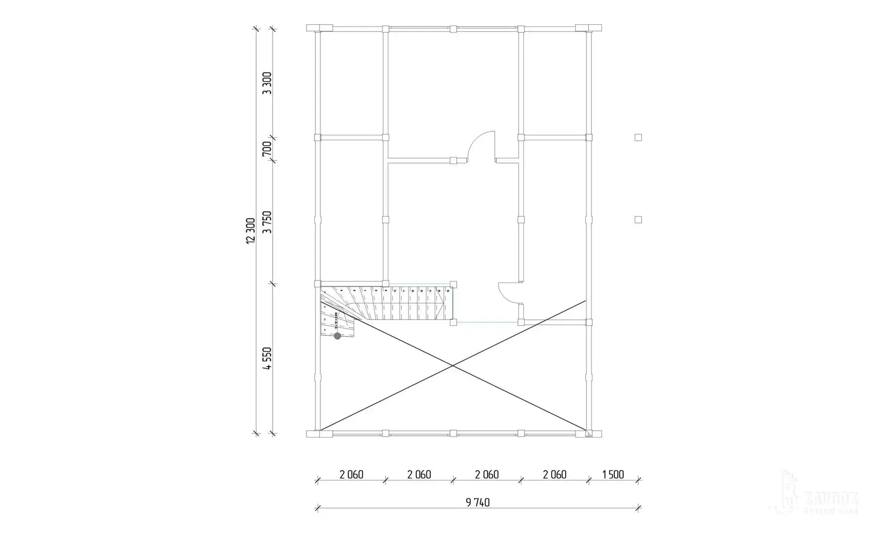
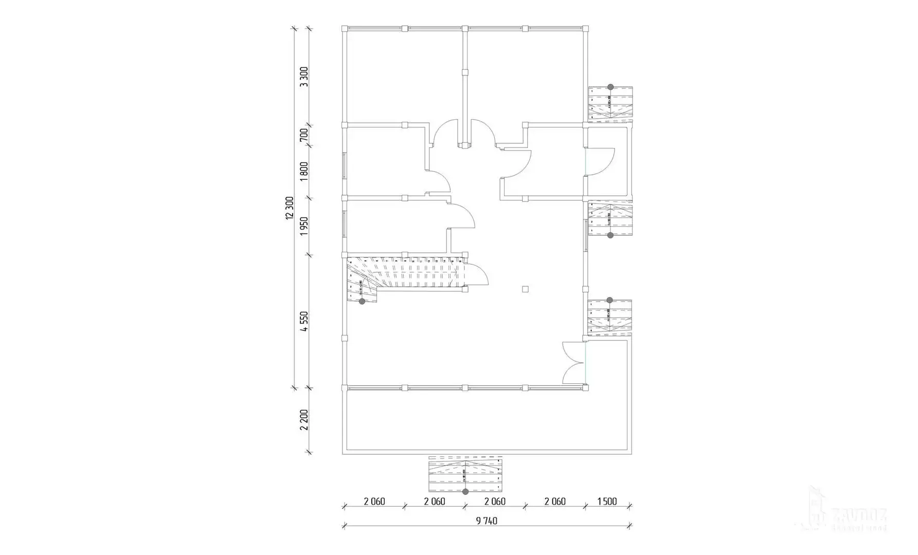
Планировка

  • Этаж 1
  • Этаж 2

Дополнительные опции

Окна
Окна
Двери
Двери
Погонаж
Погонаж
Лестницы
Лестницы

Комплектации

Группа ZAVDOZ предлагает строительство дома из клееного бруса под ключ или производство домокомплекта

  • Дом под ключ
  • Домокомплект
Проектирование
Фундамент
Стеновой комплект
Кровля
Окна и двери опционально
Отделка опционально
Сопровождение строительства
Цена за домокомплект
от 1 975 000 руб.
Проектирование
Стеновой комплект
Цена за домокомплект
от 1 975 000 руб.

Похожие дома