Скачать каталог
+7 (910) 101 02 70
Режим работы 9:00 - 21:00
Заказать звонок

Мозель-3

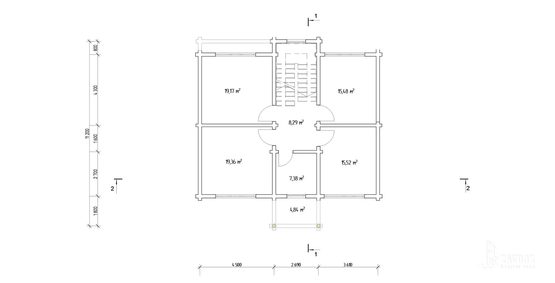
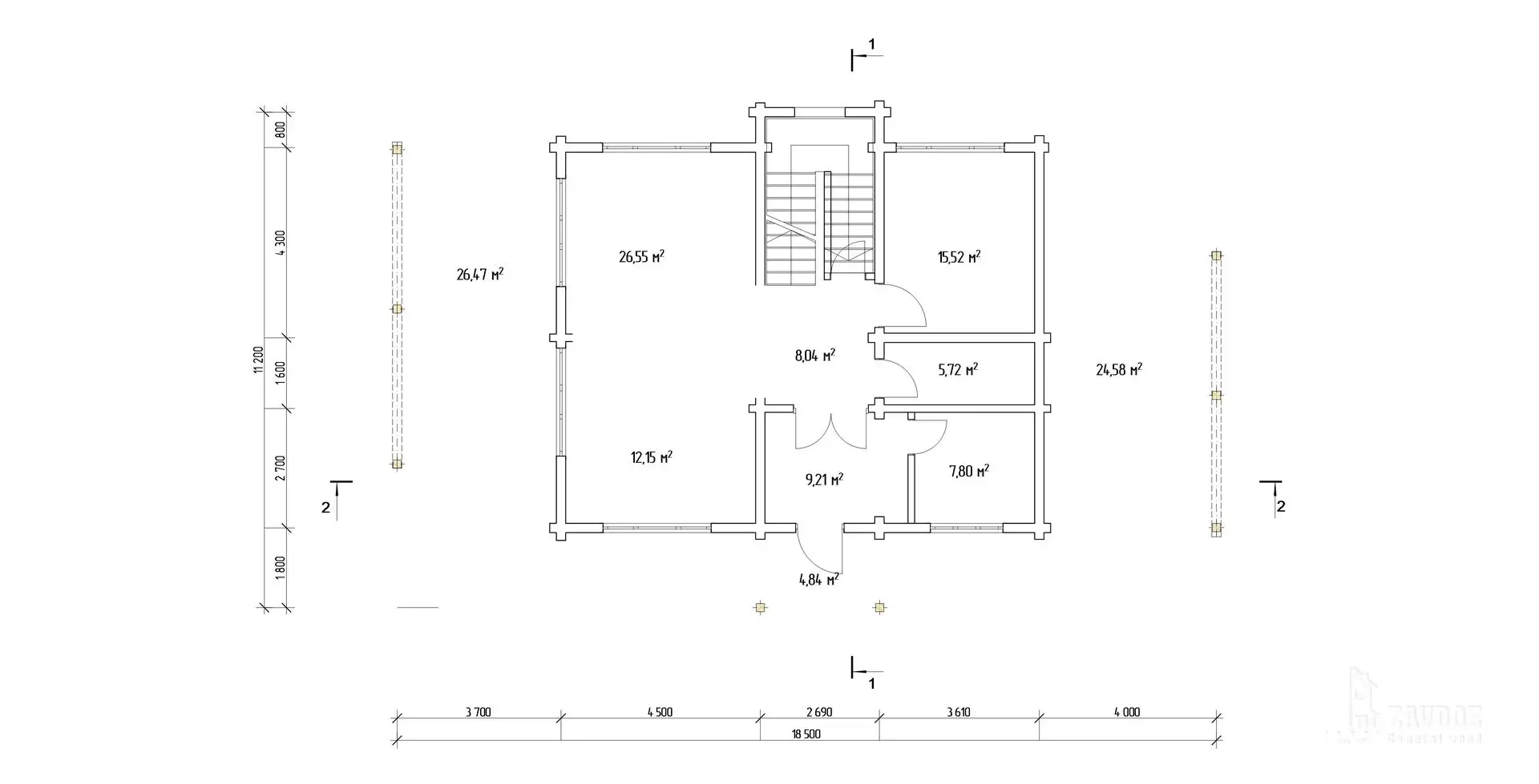
Просторный двухэтажный дом из кирпича для комфортной жизни. 1 спальня на первом этаже и 4 отдельных спальни на втором ярусе дома, 1 санузел. Удобный выход на балкон, изолированный от остальных комнат, и 2 навеса: под машину и для зоны отдыха

Общая площадь

234 м²

Этажей

2

Спален

5

Санузлов

2

Стоимость строительства уточняйте у менеджера

Планировка

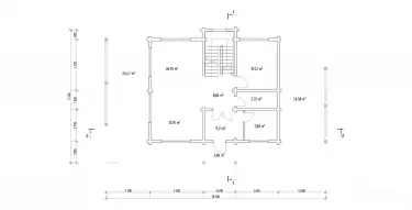
  • Этаж 1
  • Этаж 2

Описание проекта


Дополнительные опции

Окна
Окна
Двери
Двери
Погонаж
Погонаж
Лестницы
Лестницы

Похожие дома