Скачать каталог
+7 (910) 101 02 70
Режим работы 9:00 - 21:00
Заказать звонок

Робсон-3

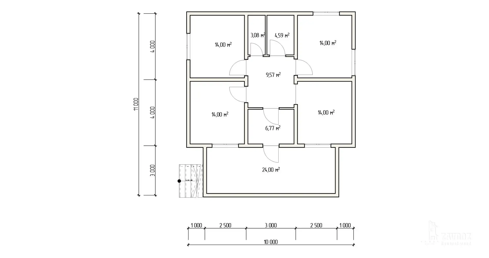
Одноэтажный дом из кирпича с просторной террасой, где можно собираться всей семьей, провожать закаты и неспешно проводить утро. Классическая планировка с двумя уединенными спальнями, отдельной кухней, гостиной и разделенным санузлом.

Общая площадь

104 м²

Этажей

1

Спален

2

Санузлов

1

Стоимость строительства уточняйте у менеджера

Планировка

  • Этаж 1

Дополнительные опции

Окна
Окна
Двери
Двери
Погонаж
Погонаж
Лестницы
Лестницы

Похожие дома