Скачать каталог
+7 (910) 101 02 70
Режим работы 9:00 - 21:00
Заказать звонок

Лоне-3

Теплый двухэтажный дом из кирпича в скандинавском стиле. Вместительная терраса, где можно неспешно встречать рассвет, навес для двух автомобилей, небольшой, но уютный балкон. Дом удобно зонирован: кухня-гостиная, отдельная зона отдыха и гостевой санузел на первом этаже, 3 спальни, просторный холл и душевая комната на втором этаже.

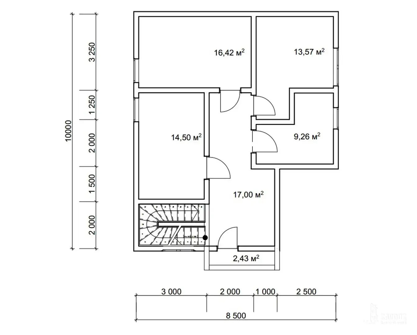
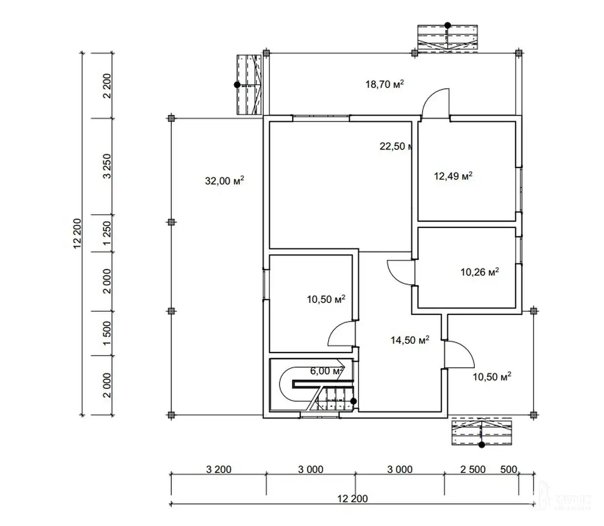
Общая площадь

210.6 м²

Этажей

2

Спален

3

Санузлов

2

Стоимость строительства уточняйте у менеджера

Планировка

  • Этаж 1
  • Этаж 2

Описание проекта


Дополнительные опции

Окна
Окна
Двери
Двери
Погонаж
Погонаж
Лестницы
Лестницы

Похожие дома