Скачать каталог
+7 (910) 101 02 70
Режим работы 9:00 - 21:00
Заказать звонок

Брекен-3

Ассиметричный дом из кирпича с двускатной крышей. На двух жилых этажах расположены просторная кухня-гостиная, гостевой санузел, 2 уединенные спальни и душевая. Небольшой балкон на втором этаже и терраса со стороны входной группы.

Общая площадь

91 м²

Этажей

2

Спален

2

Санузлов

2

Стоимость строительства уточняйте у менеджера

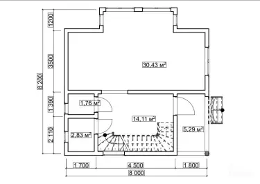
Планировка

  • Этаж 1
  • Этаж 2

Описание проекта


Дополнительные опции

Окна
Окна
Двери
Двери
Погонаж
Погонаж
Лестницы
Лестницы