Скачать каталог
+7 (910) 101 02 70
Режим работы 9:00 - 21:00
Заказать звонок

Алушта

Авторский проект Алушта
Авторский проект Алушта
Авторский проект Алушта
Авторский проект Алушта
Авторский проект Алушта
Авторский проект Алушта

Общая площадь

2709 м²

Этажей

4

Гостиница из 2 корпусов на 50 номеров

Стоимость строительства уточняйте у менеджера

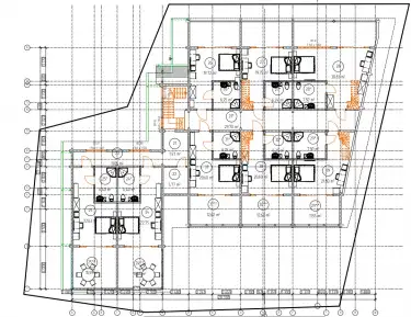
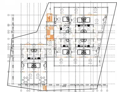
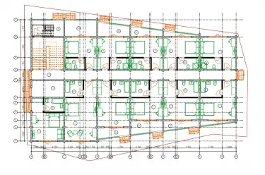
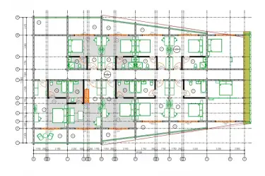
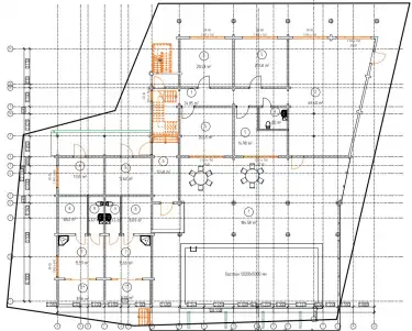
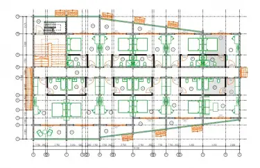
Планировка

  • Этаж 1
  • Этаж 2
  • Этаж 3
  • Этаж 4

Дополнительные опции

Окна
Окна
Двери
Двери
Погонаж
Погонаж
Лестницы
Лестницы

Комплектации

Группа ZAVDOZ предлагает строительство дома из клееного бруса под ключ или производство домокомплекта

  • Дом под ключ
  • Домокомплект
Проектирование
Фундамент
Стеновой комплект
Кровля
Окна и двери опционально
Отделка опционально
Сопровождение строительства
Проектирование
Стеновой комплект